
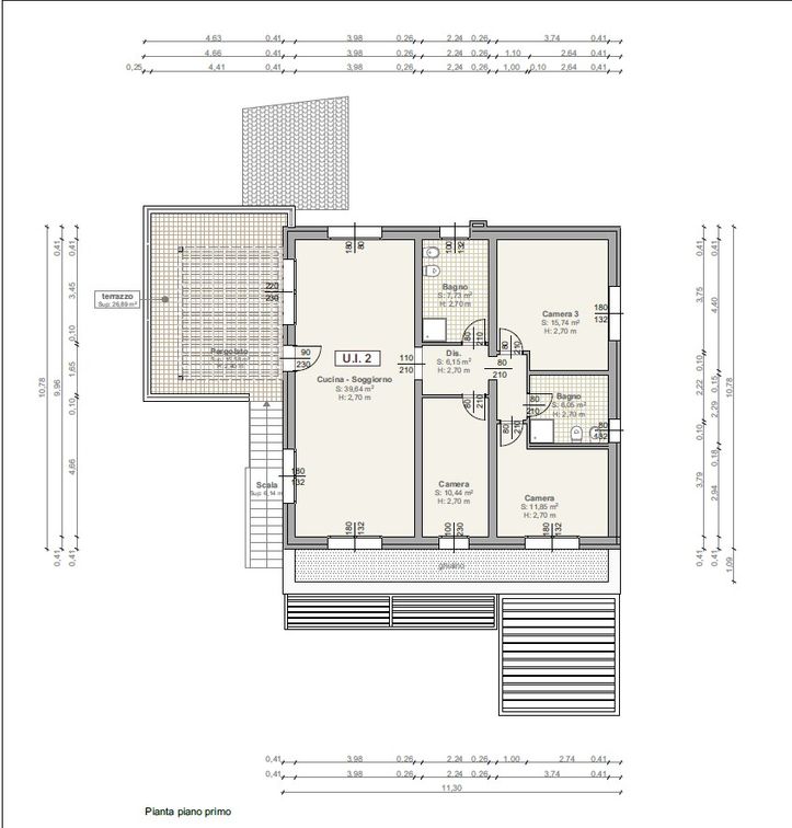
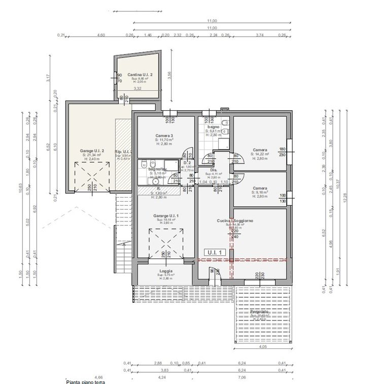
Realizzazione di due unità residenziali tramite la ristrutturazione edilizia di un fabbricato in Via San Giuseppe, nelle immediate vicinanze del centro storico di Noale.
Realizzazione di due unità residenziali in Via San Giuseppe, nelle immediate vicinanze del centro storico di Noale.L'edificio è costruito con materiali di alta qualità, cappotto termico, infissi a risparmio energetico e impianti fotovoltaici, assicurando efficienza energetica e sostenibilità.L'unità al piano terra avrà ingressi indipendenti, sia pedonale che carraio, potrà godere di un giardino esclusivo. Sono previsti serramenti in legno con tapparelle elettriche, impianto radiante a pavimento alimentato da una pompa di calore per il riscaldamento e la produzione di acqua calda sanitaria, impianto con pannelli fotovoltaici di potenza 3 Kw, impianto di climatizzazione canalizzato, predisposizione per impianto di ventilazione meccanica controllata (VMC). Finiture pavimenti, rivestimenti bagni e altro a scelta del cliente.


