
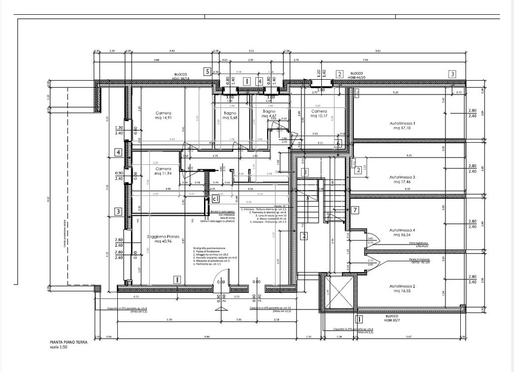
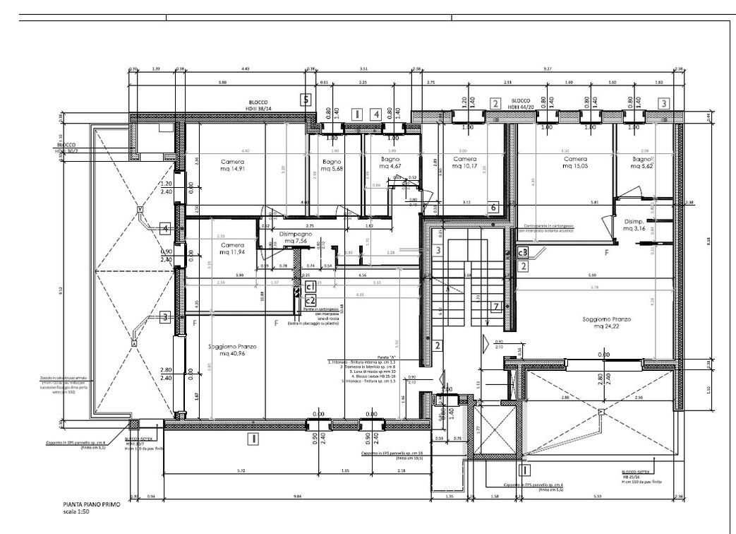
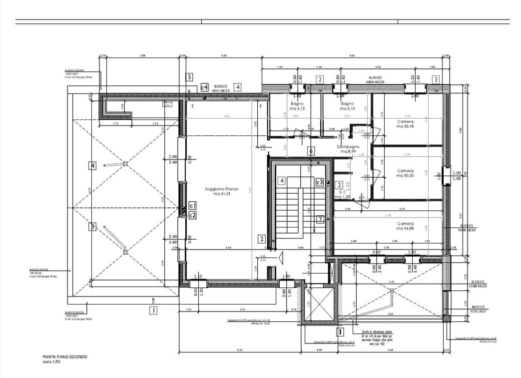
Costruzione di nuovo fabbricato composto da n.4 unità abitative in zona residenziale a pochi passi dal centro di Noale, tre camere con scoperto esclusivo e piano terra con giardino
Condominio di sole 4 unità abitative , appartamento al piano terra con ingresso indipendente, zona soggiorno con vetrata che si affaccia al giardino, camera matrimoniale, due camere singole, doppi servizi finestrati, garage e posto auto esclusivo. Tapparelle motorizzate, oscuranti motorizzati, impianto fotovoltaico 3 kW, impianto in pompa di calore per il riscaldamento e la produzione di acqua calda sanitariap







